进口比例积分电动调节阀概述:
德国多尔德DOLDR进口比例积分电动调节阀是电动调节阀的一种,其特点是采用比例和积分两种计算综合控制,可以实现连续控制。比例积分电动调节阀的输入信号可以是电压、电流或脉冲信号,其输出与输入信号成比例,具有一定的滞后特性。这种调节阀广泛应用于工业控制领域,如化工、石油、电力、冶金等行业的温度、压力、流量等自动控制系统。

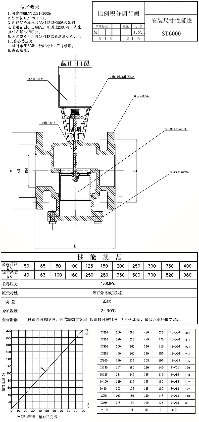
进口比例积分电动调节阀的参数包括:
阀体材质:铸钢、铸铁。
公称通径:DN15~DN200。
公称压力:PN1.6、2.5、4.0、6.4、10.0、16.0、20.0(兆帕)。
连接方式:法兰连接(二通、三通)、螺纹连接。
阀体耐压等级:GB PN16(耐压1.6MPa)。
流量特性:等百分比或线性。
泄漏量:Kv值0.02%以下。
介质:冷/热水、蒸汽、乙二醇等。
电源电压:AC220v、AC24v、DC24v等。
运行模式:三态浮点或开/关0-10VDC或4-20mA信号控制。
输出扭矩:1800N,2500N,3000N,4000N。
运行速度:0.24mm/s。
环境温度:0℃-60℃。
介质温度:0℃-120℃、0℃-170℃、0℃-380℃。
进口比例积分电动调节阀的工作原理:
当输入信号发生变化时,阀芯动作,输出与输入信号成比例,同时具有积分作用,能够自动调节流量,保持系统稳定。此外,进口比例积分电动调节阀还具有结构简单、响应速度快、调节精度高等优点。
在使用进口比例积分电动调节阀时,需要注意以下几点:
安装时应垂直放置,避免受到外力损坏。
在使用前应检查调节阀的外观、密封性、泄漏量等指标是否符合要求。
调节阀的输入信号应稳定、可靠,以免影响调节精度。
在使用过程中应定期进行维护保养,如清洗、检查、更换密封件等。
总之,进口比例积分电动调节阀是一种先进的控制设备,具有多种优点和广泛的应用领域,可以满足不同工业控制系统的需求。
进口比例积分电动调节阀结构图:


全国服务热线



